Artist Impression Only. Plans & Specs Take Precedence. 

Includes GST. Price for complete House & Land package. Indication only, subject to final plans & specifications.
Thanks - we've received your details. There is not yet a price stored on this property, however one of the team will send a full price break down soon.
Enter a couple of details and we’ll send you further property information plus a full price breakdown. You’ll also see an indicative price online straight away.

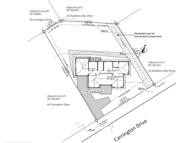
67 Carrington Drive, Karikari Peninsula

  Sold  

Nested into the hill.

This Strand House & Land Package on Carrington Drive is on the renowned Karikari Peninsula, home of white sandy beaches and bays and world class golf course, winery and resort. With great elevation, this spot has expansive views of Doubtless Bay and Tokerau Beach and drinks in the sun of the ‘winterless North’. This dream spot has been paired with a modern 3 bedroom, 2 bathroom home, complete with a master suite (including a walk-in-wardrobe and ensuite), an open plan living, kitchen and dining that capitalizes on the stunning outlook and storage in the form of a garage and Linen/storage cupboard. Being just a few hundred metres from the general store, bar and takeaways and just 1km away from the Carrington winery, this spot is perfect for modern NZ coastal living.

Vincent Garton
Home Consultant
3 Bedrooms
2 Bathrooms
1 Garage Spaces
142m2 Floor Area
712m2 Land Area

Discover Karikari Peninsula

Get away from the hustle and bustle and settle in the quiet haven of the Karikari Peninsula, a glistening gem of the Far North – pure white sands, clear pristine waters, exquisite sheltered wrap-around bays, this peninsula is a playground for those who love their dose of vitamin sea. Each bay has its own special character, this is a sanctuary of outdoor activities and refreshing escapes. Dotted with budding coastal communities and world-renowned attractions, this is a invigorating area to be a part of with reputable Maitai Bay, Carrington Estate, Golf Course and the Karikari Estate Winery.

Key highlights of the area:

Maitai Bay – a frequent mention in the annual vote for New Zealand’s best beaches.
Karikari Estate – New Zealand’s northernmost Winery, Cellar Door and Wedding Venue.
Carrington Estate – A grand 3000acre estate, home to a 18-hole championship golf course, restaurant and accommodation.
Puheke Beach – one of Karikari Peninsula’s best kept secrets, think white sands, blue water, no crowds, great fishing.
Rangiputa Beach – The harbour side perfect swimming beach, recommended surf casting spot and boat launching facilities.
Tokerau Beach – the longest beach on the Karikari Peninsula, a safe swimming spot also ideal for snorkelling, diving, fishing, clamming, kayaking and boating.